ERA Luz Immobilier - Agence Immobilière à St-Jean-de-Luz

Vente appartement T3 à SAINT JEAN DE LUZ | 54 m2 - 273 000 €

PHOTOS

DESCRIPTIF DU BIEN

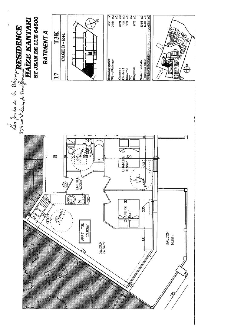
Appartement 3 pièces avec terrasse et parking Situé au sein d'une résidence sécurisée construite en 2010, cet appartement de 3 pièces offre une surface habitable de 53,93 m² et se distingue par son excellent état général. Il se compose de deux chambres, d'une salle de bain, ainsi que d'une kitchenetteouverte sur l'espace de vie. l' expositions Est assure une belle luminosité. L'appartement bénéficie également d'une agréable terrasse de 14,88 m², idéale pour profiter des beaux jours. Un parking et une cave complète ce bien. Copropriété de 176 lots - dont 57 lots habitation. (Procédure en cours). Charges annuelles : 1384 euros.

INFORMATIONS DÉTAILLÉES

Construction : 2010Étage : 1Ascenceur : ouiAccès handicapés : ouiNbre pièces : 3Nbre chambres : 2Nbre de salles de bain : 1Cave : ouiNbre de parking : 1Surface habitable : 54 m2Nbre de lots : 176Nbre de lots copro : 176Procédure en cours : oui

CONSOMMATION ÉNERGÉTIQUE

Montant estimé des dépenses annuelles d'énergie pour un usage standard entre 660 € et 900 € .

Diagnostic de performance énergétique
120 KWhEP/m2/an
Gaz à Effet de Serre
4 Kgéq/CO2/an

CONTACTEZ-NOUS

ERA Luz Immobilier - Agence Immobilière à St-Jean-de-Luz 05 59 851 851

Ou utilisez le formulaire de contact ci-dessous :